Frank Landmesser
Meine private Homepage für highfidele Musikwiedergabe
  • Neues
  • Home
  • Höreindrücke
  • Messeberichte
  • Selbstbau
    • KEF LS50 Tonfeile Pimp - Lautsprecher
    • The Unswayed - Tonarm
    • Tafal - Lautsprecher
    • Visaton VOX 200 MHT High End - Lautsprecher
    • DiSub 310 - Subwoofer
    • Hifi-Rack
      • Konstruktion
      • Aufbau
      • Höreindrücke
    • Silberflachbandkabel - NF-Kabel
    • 10-EUR-NF-Kabel - NF-Kabel
    • Klang-Projekt - NF-/LS-Kabel
  • Tuning
  • Car Hifi
  • Links
  • Kontakt

Selbstbau - Hifi-Rack

=>
Kapitel:
  • Idee,
  • Konstruktion,
  • Aufbau,
  • Höreindrücke
<=

Konstruktion

Analog zur VOX 200 MHT High End - Konstruktion gibts nun auch hier die unansehlichen aber praktischen 2D-CAD Bildchen zum genauen Nachbau oder zur Anleihe einzelner konstruktiver Details.

Anmerkung zu den Bildern: Um die korrekte Darstellung der CAD-Bilder zu erhalten, wurden nicht alle auf ein kleines Bildformat heruntergerechnet. Bei kleinen Browserfenstern oder Monitoren mit geringer Auflösung kann es standardmässig zu einer verkleinerter Darstellung kommen. Eine Volldarstellung ist trotzdessen möglich - s. ggf. Hinweis in der Fusszeile.

Im Bild oben ist das Rack von vorne unbemasst in der Gesamtdarstellung zu sehen. Mit den roten Linien ist ein Standard Gerätegehäuse dargestellt.

Bild 1: Das gesamte Rack mit Bemassung der Aussenabmessungen und der einzelnen Fachhöhen, die selbstverständlich je nach Bedürfnis auch anders oder - durch mehrere Bohrungen in den Vertikalprofilen - sogar variabel gestaltet werden können. Aus optischen Gründen habe ich allerdings auf diese Variabilität verzichtet und hoffe nun, dass mir nie eine bessere und insbesonders höhere (als 210 mm) Endstufe als meine Gamut "zu Ohren kommen" wird.

Bild 2: Das gesamte Rack mit Bemassung in der Aufsicht. Es sind selbstverständlich Variationen der hinteren Vertikalprofile möglich. Denkbar wären z.B. T-Profile oder analog zu Burmester ebenfalls L-Profile. Bei voller Breite wäre dann allerdings eine zusätzliche Abstützung in der Mitte ratsam. Ich empfinde die 3 eingerückten hinteren Vertikalprofile geben dem Design eine gewisse Leichtigkeit - das ganze wirkt so weniger kastenförmig. Zudem ist dieses Design näher am Timmermannschen klangoptimierten Design, da die Anordnung der Profile so gewählt ist, dass jedes Gerät quasi eine 3-Punkt-Abstützung sieht.

Achtung hier kommt die Crux (oder der Clou) des ansonsten eher simplen Designs: Es gibt drei verschiedene Bödentypen. Der oberste Boden (Deckel - Bild 1) und der unterste Boden (Boden - Bild 3) werden aus Stabilitätsgründen fest mit den Vertikalprofilen verschraubt. Die mittleren Böden (Auflegeböden - Bild 2) sind eine Stufe weiter entkoppelt und liegen auf kleinen Holzklötzchen (die ihrerseits fest mit den Aluprofilen verschraubt sind) auf. An dieser Stelle sind der Fantasie und der Experimentier- bzw. Optimierfreude kaum Grenzen gesetzt. Die Ankopplungs- und Dämpfungseigenschaften dieser Böden lassen sich in weiten Teilen beeinflussen. Ich habe vorerst ein Design bestehend aus Massivholzklötzchen und Möbelfilzgleitern als Verbindung zu den Böden gewählt. Timmermanns hat beispielsweise mit Spaxschrauben als Spikes in den Böden und als Widerlager in den Klötzchen auch eine Version mit harter Ankopplung realisiert. Denkbar wäre auch das Experimentieren mit speziellen Gerätefüssen anstelle der Filzgleiter. Audioplans Antispikes sind hier sicher auch einen Versuch Wert. Falls eine höhere Dämfpung gewüscht wird können z.b. auch Sicomin-Lagen eingebracht werden. Über das Einreichen von weiteren Ideen oder Berichten über ge- oder missglückte Versuche bin ich jederzeit dankbar.

Zu Bild 1: Die Gesamtdicke wurde durch das Verleimen von zwei 18 mm Multiplexplatten erreicht. Das gibt die Möglichkeit Ausfräsungen in den Platten mit dämpfenden Material zu füllen. Ich habe 4 mm Bitumeplatten gewählt. Möglich wären beispielsweise auch Sand- oder Sand-Bleischrotfüllungen, Hawophon-Stahlkugelmatten und eine Lage Filz odere andere schwere Materialien. Man sollte es allerdings nicht übertreiben, denn schon meine Version ist ziemlich schwer und bei einem Aufbau auf schwingenden Altbauböden wäre evtl. bei einer "Befüllung" mit schweren Endstufen im Tri-Amping und mehreren Monster-Masselaufwerken ansonsten ein "Duchhängen" in Richtung "Untermieter" zu befürcheten. Auf die Fräsungen für die Gewindebolzen habe ich letztendlich verzichtet, da sich eine Untermassbohrung (ca. 5 mm für M6) und dann das Einschneiden eines Gewindes ins Multiplex mit 80 mm Edelstahlschrauben als mehr als ausreichend stabil erwiesen haben.

Zu Bild 2: Auch ein Vorteil der Auflegeböden - hier gibts nix zu bohren oder zu befestigen. Nur die kleineren Aussenabmessungen der Böden sind zu berücksichtigen, damit diese später auch wirklich keinen direkten Kontakt mit den Vertikalprofilen haben und damit das Entkopplungskonzept konterkariert würde.

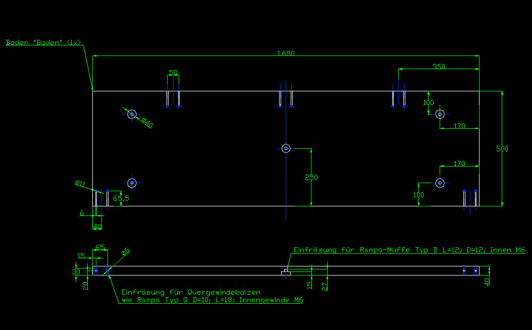
Zu Bild 3: Der Boden gleicht im wesentlichen dem Deckel, mit dem Unterschied, dass ich mit 40 mm noch ein wenig dicker gewählt habe und auf die innere Bedämpfung verzichtet habe, da hier ohnehin nahezu direkter Kontakt zum Untergrund herrscht. Entscheidend für das An- und Entkopplungs-Gesamtkonzept ist hingegen das Einlassen von fünf Audioplan-Antispikes in dafür vorgesehene Fräsungen. Damit "schwebt" das Rack wenige Millimeter über dem Boden. Das sieht nicht nur gut aus, sondern ermöglicht den Antispikes erst ihre Wirkung zu verrichten, da der Boden und die Aluprofile damit keinen direkten Untergrundkontakt mehr haben. An dieser Stelle wäre natürlich auch der Einsatz anderer Lautprecher- oder Gerätefüsse möglich. Aus praktischen (Verschiebbarkeit des Racks) und klanglichen Gründen kann ich allerdings die Antispikes nahezu auf jedem Untergrund empfehlen.

Bild 1: Vertikalprofil. Das gewählte Aluprofil ist als Standardmeterware erhältlich. Muss nur auf das gewünschte Mass abgeschnitten und mit Bohrungen versehen werden. Damit die Oberflächenoptik auch dekorativen Ansprüchen genügt und dies auch so bleibt, wurden sie zudem geschliffen und klar eloxiert.

Bild 2: Holzklötzchen für die Auflage der Böden. Wie schon beschrieben, kann an dieser Stelle mit verschiedenen An- und Entkopplungskonzepten experimentiert werden.

Zum Seitenanfang
Vorherige Seite
Nächste Seite