Ich weiss! Diese CAD-Bilder sind nicht schön; aber zweckmässig und im Gegensatz zu hübsch gerenderten 3D-Bildern bemasst. Mein damaliger Professor für CAD und technisches Zeichnen würde mir wahrscheinlich bei deren Überprüfung nachträglich den Schein entziehen - zu spät! Ich hoffe die Bemassungen sind trotzdem nicht allzu verwirrend und ein eventueller Nachbau bzw. die Anleihe einzelner kontruktiver Details gelingt problemlos. Bei Unklarheiten einfach unter Kontakt nachfragen.
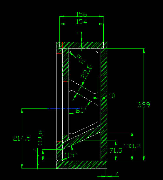
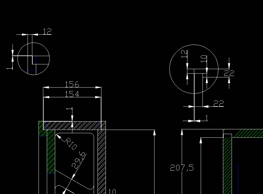
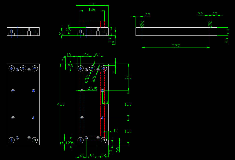
Bis auf der Entfall der Fase an der Front und der Reduzierung der Gehäusebreite von 200 auf 180 mm, wurden alle konzeptionell relevanten Masse bzgl. Bassreflexabstimmung, Nettovolumina unter Berücksichtigung der Stahlkugelmatte (Filz verhält sich Volumenneutral und übernimmt neben der synergetichen Dämmung mit der Stahlkugelmatte schon einen Teil der Dämpfung) und Platzierung des seitlichen Tieftöners beibehalten. Auf dem ersten Bild ist links schon die Bemassung der Alufront enthalten, rechts ist kein echter Schnitt, sondern der Blick ins Innere nach "Abnahme" der Seitenwand. Das zweite Bild zeigt die Lage der Tieftöner Abdeckung, die aus optischen Gründen so gewählt wurde. Änderungen sind hier je nach Geschmack ohne akustische Konsequenz möglich. Die 200 MHT High End ist mit 1100 mm Höhe zzgl. Schattenfuge zum Sockel, Schiefersockel inkl. eingelassener Antispikes (nicht in Zeichnungen enthalten) - also mit 1160 mm Gesamthöhe deutlich höher als die Original 200er mit ihren "fusslosen" 1000 mm. Für meinen Hörplatz entsteht so für den Hochtöner die optimale "Ohrhöhe". Wer tiefer sitzt, kann hinsichtlich Platzierung der Frequenzweichenkammer und des Auslegung des Sockels Höhe reduzieren.
Noch ein Wort zur fehlenden Fase und die Verbreiterung der effektiven Schallwandbreite (bei gleichzeitig reduzierter Gesamtbreite): Nein, diese Änderungen sind in der Frequenzweiche nicht berücksichtigt! Ja, ich kenne die Auswirkungen von Kantenreflexionen (diffuseres Ortungsvermögen) und Baffle-Step (tonale Veränderungen durch verschiedene Abstrahlung bei verschieden breiten Schallwänden, die insbesondere der Mitteltöner sieht).
Ein paar Worte hierzu: Auch eine Vox mit einer 45 Grad Fase hat "scharfe" Seitenkanten - nur mit 45 zu 90 Grad halt etwas stumpfer. Konsequent wären grosszügigge Rundungen. Im Ergebnis kann klanglich von einer schlechteren Ortbarkeit ggü. der Original-VOX keine Rede sein. Eher das Gegenteil ist der Fall. Dies liegt sicher nicht an den - vorhandenen(!) - Kantenreflexionen, sondern daran, dass sich diese wohl nicht so negativ bemerkbar machen. Ob die Ortbarkeit durch deren Vermeidung noch verbessern lässt, werde ich demnächst unter Updates untersuchen. Der Baffle-Step-Effekt wirkt sich sicher auch auf den Frequenzschrieb aus, wobei das Fehlen der Fase hinsichtlich der Schallwandbreite durch Reduzierung der Gesamtbreite wieder teilweise kompensiert wird. Messungen im schalltoten Raum zur Überprüfung der Effekte kann ich leider nicht liefern. In meinem Wohnraum zumindest zeigt sich keine Verfärbung, die auf einen der beiden Effekte rückführen liessen. Meiner Einschätzung nach, machen sich ohnehin aufstellungsbedingte Effekte deutlich stärker (auch am Hörplatz bemerkbar), als die beiden vorangehend genannten. Einfach ausgedrückt: Was nützt eine korrekte Auslegung der Schallwandbreite, die hinsichtlich weniger Millimeter mehr oder weniger vielleicht messtechnisch belegbare Frequenzhubel oder -dellen erzeugt, wenn durch wohraumbedingte Aufstellung der Grundton ohnehin 6 bis 10 dB neben der Messung im schalltoten Raum liegt. Meine Empfehlung: Keine Angst vor geringfügigen Änderungen an Gehäusemassen.







